Aufstockung TBS-5
Weinfelden TG, 2023 - 2027

Auftragsart: 1. Rang Wettbewerb 2004
Baukosten: 12.5 Mio
Leistungen: Architektur
Bauherrschaft: Schule Weinfelden
Status: in Ausführung
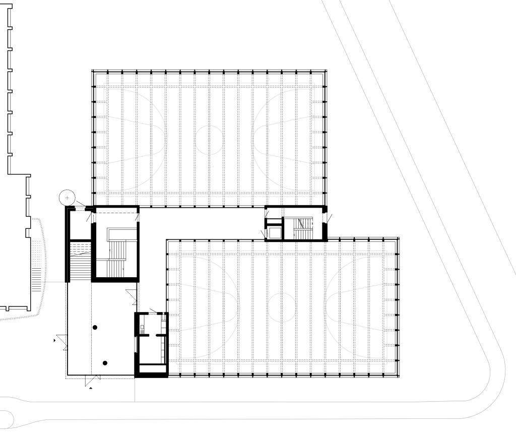
Bereits im offenen Architekturwettbewerb von 2004 für zwei Schulsporthallen war im geforderten Programm eine Aufstockung vorgesehen. Die Grundrissstruktur, das Fluchtwegkonzept sowie die Statik wurden bereits im Bauwerk so ausgelegt, dass eine spätere Erweiterung um Schulzimmer entwurfstechnisch berücksichtigt und baulich vorbereitet ist. Heute, 21 Jahre später, wird der Standort Thomas Bornhauser als Schulzentrum weiter verdichtet, und diese damals geplante Möglichkeit wird nun realisiert.


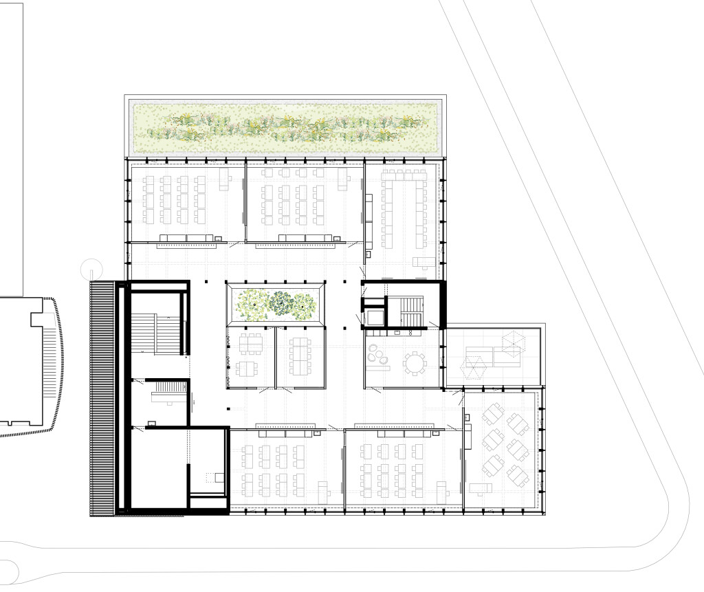
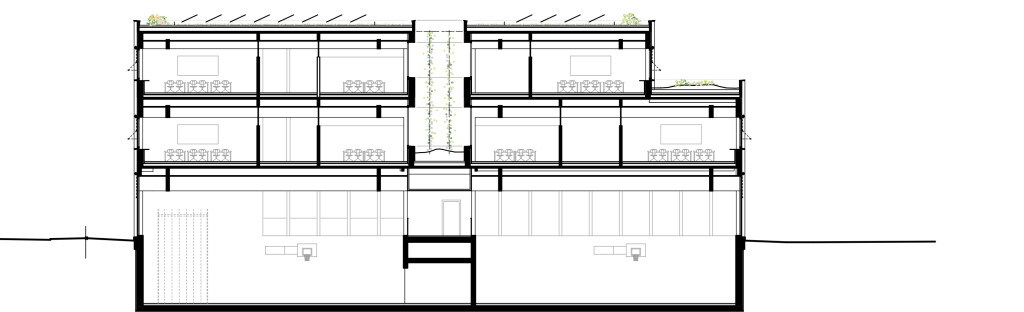
Prozessauszug: das Projekt zeichnet sich durch eine ressourcenschonende Umsetzung aus, indem die bestehenden Strukturen der beiden Schulsporthallen wiederverwendet werden. Die zweigeschossige Aufstockung erfolgt in Holzbauweise und setzt somit auf eine nachhaltige, flexible Rohbaustruktur, die dank der Tragwerksüberspannung zukünftige Anpassungen ermöglicht. Die Erweiterung kann kosteneffizient realisiert werden, da Fundamente und Unterbau inklusive Treppen bereits vorhanden sind und keine zusätzliche Grundstücksfläche beansprucht wird.

Erdgeschoss mit Sporthalle

2. Obergeschoss Aufstockung mit Schulräume

Querschnitt

Roger Biscioni, Marc Graf, Nicole Wenzel, Leah Scherrer, Silvan Wettstein, Mona Nüssli
Baumanagement: MLR Baumanagement GmbH
Bauingenieur: A. Keller AG
Holzbauingenieur: Krattiger Engineering AG
Elektro: Amstein+Walthert AG
HLKS: Amstein+Walthert AG
Brandschutz: Krattiger Engineering AG
Visualisierungen: Tom Schmid